Детальное описание
Котел паровой,9Г-3 принадлежит к типу вертикальноводотрубныхдвухбарабанных котлов с естественной циркуляцией.
Котел паровой расчитан для работы на природном газе.
Котел паровой Е-1,0-0,9Г-3 предназначается для выработки насыщенного пара рабочим давлением 0,8 МПа для потребления предприятиями промышленности и сельском хозяйстве, для технологических, хозяйственных и бытовых нужд.
Котел паровой работает под разрежением. Конструкция трубной системы котла выдерживает кратковременное давление в топке до 3000 Па и разрежение в топке до 400 Па. По устойчивости и воздействию температуры и влажности окружающего воздуха паровой котел изготавливается в климатическом исполнении УХЛ4 категории размещения 4 по ГОСТ 15150. Конструкция котла обеспечивает сейсмостойкость 6 баллов по шкале MSK- 64.
Описание конструкции
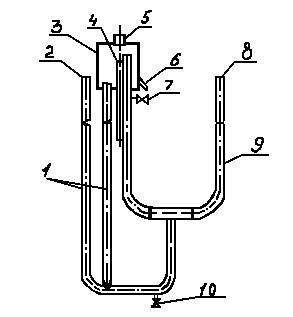
Предохранительное устройство состоит из двух гидрозатворов, один из которых 9 защищает деаэратор от превышения допустимого давления, а другой 1 — от опасного повышения уровня, объединенных в общую гидравлическую систему, и расширительного бачка 3. Последний служит для накопления объема воды (при срабатывании устройства), необходимого для автоматической заливки устройства после устранения нарушения в работе установки.
Диаметр парового гидрозатвора проверяется, исходя из наибольшего допустимого давления в деаэраторе 0,17 МПа
( 1,7 кгс/см2) (абс.) и максимально возможного в аварийной ситуации расхода пара в деаэратор при полностью открытом регулирующем клапане и максимальном давлении в источнике пара. Для уменьшения расхода пара в деаэратор в любых ситуациях до максимально необходимого на паропроводе рекомендуется дополнительно установить ограничительную
диафрагму. Диаметр переливного гидрозатвора проверяется, исходя из максимально возможного расхода воды в деаэратор в аварийных ситуациях.

1 – переливной затвор; 2 – подвод пара из деаэратора
3 – расширительный бачок; 4 – слив воды;
5 - выхлоп в атмосферу; 6 - труба для контроля залива;
7 - подвод химически очищенной воды для заливки;
8 - подвод воды от деаэратора; 9 - гидрозатвор от повышения давления; 10 - дренаж.
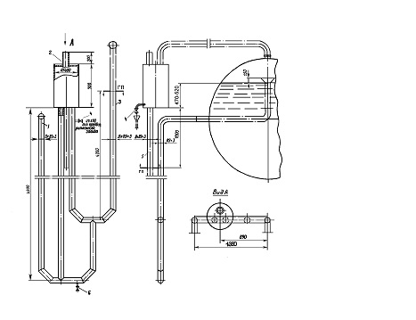
Устройство предохранительное ДА-5
1 - перелив из деаэратора, Dy 80 мм; 2 - выход пара в атмосферу, Dy 100 мм; 3 - подвод пара из
деаэратора, Dy 80 мм; 4 - трубопровод залива и контроль залива, Dy 25 мм; 5 - сливной трубопровод,
Dy 80 мм; 6 - дренаж, Dy 25 мм; ГП - граница поставки
catalog/pu-2.jpg
Технические характеристики
|
300 |
|
Наименование |
Диаметр расширительного |
Диаметр трубопровода |
Диаметр трубопровода деаэратора, мм. |
|
ДА-5 |
400 |
80 |
80 |
|
ДА-15 |
400 |
80 |
80 |
|
ДА-25 |
400 |
80 |
80 |
|
ДА-50 |
600 |
100 |
150 |
|
ДА-100 |
700 |
150 |
200 |
|
ДА-200 |
900 |
200 |
250 |
|
ДА-300 |
900 |
200 |
300 |