Детальное описание
Описание
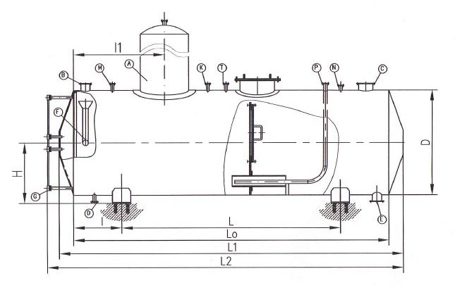
Баки деаэраторные, как правило, используются в специальных установках — деаэраторах. Вся установка, в которую входит бак, используется для откачки вредных газов из подпиточной и питательной воды в парогенераторах и тепловых сетях. Бак деаэраторный конструкторски представляет собой специальный горизонтальный цилиндрический сосуд, предназначенный для правильного функционирования деаэраторов.
Особенности
Любой деаэраторный бак имеет особые днища, специальные патрубки входа и выхода рабочей среды, а также специальный люк-лаз и отверстия, которые рассчитаны под деаэрационную колонку. Возможно изготовление деаэрационного бака как с конусным, так и с эллиптическим днищем.
Технические характеристики

.jpg)

